

Предлагаем вашему вниманию - готовый каменный дом 123м2 с мебелью, плоской эксплуатируемой кровлей на земельном участке 9 соток и с собственным выходом в лес!
При покупке дома на начальной стадии строительства предоставляется скидка в размере до 600 000р.!
Всего в 22 км от МКАД по Каширскому или Новорязанскому ш.
Локация: Раменский район, д. Прудки, коттеджный поселок "Европейский квартал".
- Земельный участок S = 872м2;
- Забор по периметру участка с откатными воротами, калиткой и калиткой с выходом в лес;
- Обустроенная въездная группа, ландшафт, навес для машины, зона отдыха (беседка, костровая зона)
- Инженерные коммуникации: центральное водоснабжение (Подключено к дому), Канализация (Биостанция подключено к дому), Электричество 15кВт (заведено, подключено, обслуживание Мосэнергосбыт по сельским тарифам), Газ по границе участка. Фундамент: Свайно-ростверковый с плитой. Сваи забивные, ростверк с плитой залиты единовременно;
Стены и перегородки: Полистеролбетонный блок 400мм;
Высота потолков: 3,0 м;
Полы: Теплые по всему дому, стяжка под финишное покрытие;
Фасад: Облицован декоративная штукатурка короед + планкен лиственница;
Отделка: предчистовая (White Box под покраску) + сантехника.
Инженерные коммуникации: Внутренние - электрика, канализация, водоснабжение, отопление, электро-газовый котел.
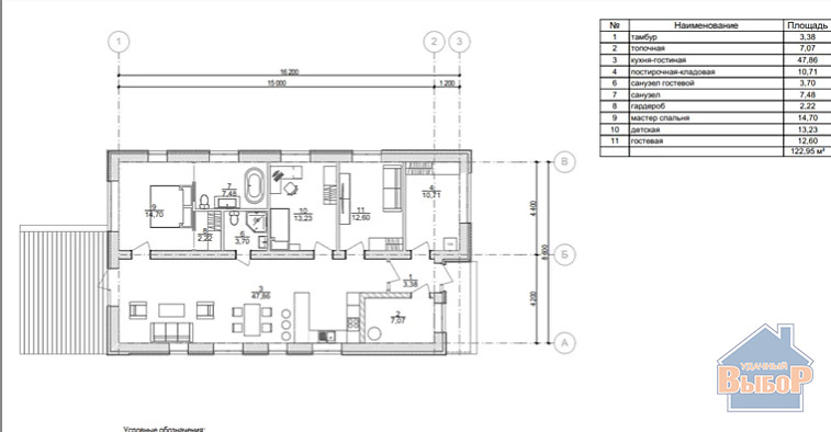
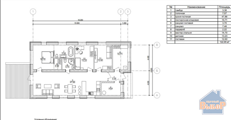
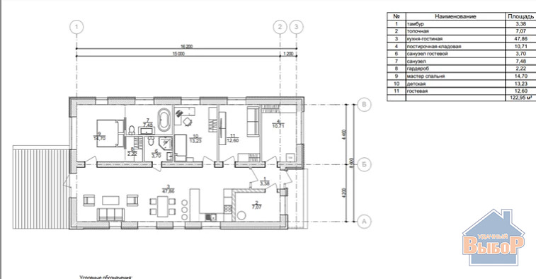
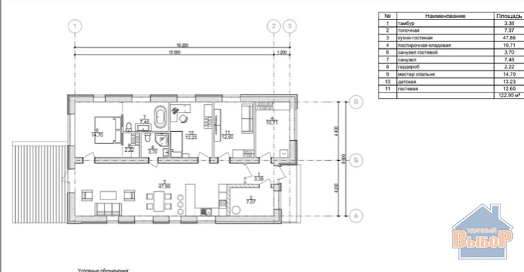
Планировка дома:
- Кухня-гостиная – 47,86 м2; Мастер спальня – 14,7 м2;
- Детская – 13,23 м2; Гостевая – 12,6 м2;
- Санузел гостевой – 3,7 м2; Санузел – 7,48 м2;
- Постирочная-кладовая – 10,71 м2; Топочная – 7,07 м2;
- Тамбур – 3,38 м2; Гардероб – 2,22 м2. Инфраструктура поселка:
Все коммуникации заведены в поселок –ГАЗ , электричество 15кВт., водопровод, канализация.
Асфальтированные дороги. КПП и круглосуточная охрана поселка.
Рядом с поселком развитая инфраструктура школа, больницы, фитнес, магазины 24ч.
Собственная ответственная обслуживающая компания.
На территории поселка будут расположены детские и спортивные площадки.
Рядом реки (р. Москва и р. Пахра), горнолыжный спуск, кинотеатры, конно-спортивный клуб, места для охоты и рыбалки.
Дорога до Москвы занимает 30 минут по Старокаширскому шоссе.
Расстояние от МКАД – 22 км. Так же возможно добраться по Новорязанскому шоссе.
Рейсовый транспорт от станций метро Домодедовская, Выхино или Котельники, от г. Жуковский и г. Лыткарино.
Ипотека - все госпрограммы, ставка от 5%.
По запросу при платном бронировании и покупке предоставляются эскизный и Архитектурный раздел проекта,
отчет по геологии земельного участка.
Показ: По договорённости в удобное для вас время!
Дополнительная информация:
При покупке данного объекта покупатель получает в подарок:
- Сертификат на на покупку мебели и товаров для дома в розничной сети Hoff.*
- Ваучер на бесплатный отдых в солнечной Турции в осенне–зимний период с проживанием в 5* отелях на 7 ночей/8 дней.*
- Сертификат "Столплит" на сумму на покупку мебели.* Объект продаётся при содействии специалистов АН «Удачный выбор».
Агентство является членом РГР, ГРМО и партнером всех ведущих банков страны.
Мы содействуем в одобрении ипотечных кредитов, помогаем сэкономить на процентной ставке, оценке и страховке, оказываем юридическое сопровождение сделки «под ключ».
Заинтересовало предложение?! Звоните!!
14900000 руб. | 225730 $ | 197818 €