

Предлагаем вашему вниманию готовый каменный дом 123 м2 с мебелью, плоской эксплуатируемой кровлей на земельном участке 9 соток и с собственным выходом в лес!
Всего в 22 км от МКАД по Каширскому или Новорязанскому ш.
Локация: Раменский район, д. Прудки, коттеджный поселок "Европейский квартал".
-
Земельный участок S = 872 м2;
-
Забор по периметру участка с откатными воротами, калиткой и калиткой с выходом в лес;
-
Обустроенная въездная группа, ландшафт, навес для машины, зона отдыха (беседка, костровая зона);
-
Инженерные коммуникации: центральное водоснабжение (подключено к дому), канализация (биостанция, подключено к дому), электричество 15 кВт (заведено, подключено, обслуживание Мосэнергосбыт по сельским тарифам), газ по границе участка.
Фундамент: свайно-ростверковый с плитой. Сваи забивные, ростверк с плитой залиты единовременно;
Стены и перегородки: полистиролбетонный блок 400 мм;
Высота потолков: 3,0 м;
Полы: теплые по всему дому, стяжка под финишное покрытие;
Фасад: облицован, декоративная штукатурка "камешковая" + планкен лиственница;
Отделка: под ключ + мебель + сантехника;
Инженерные коммуникации: внутренние — электрика, канализация, водоснабжение, отопление, электро-газовый котел.
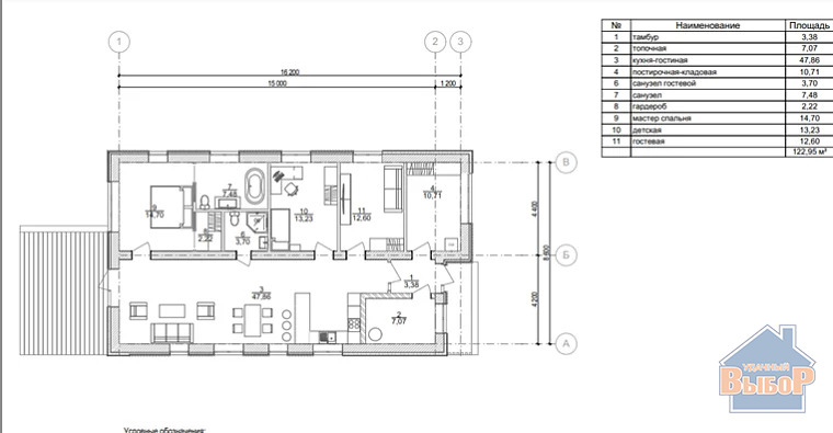
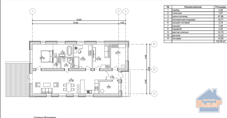
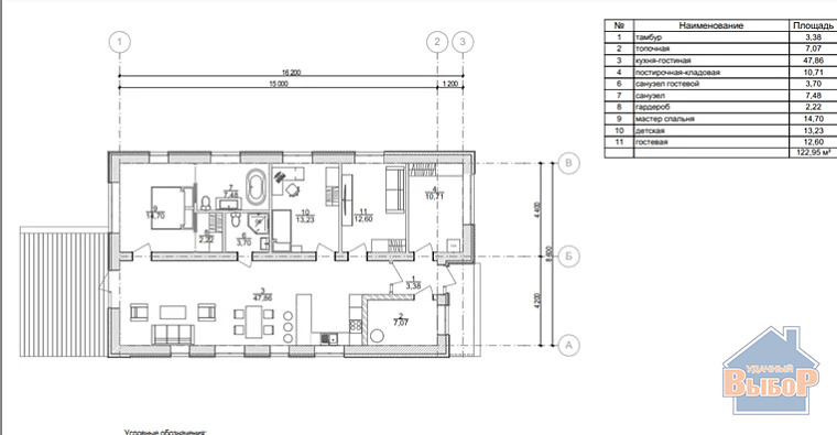
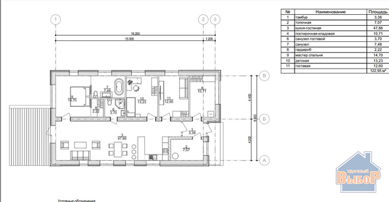
Планировка дома:
Кухня-гостиная – 47,86 м2; Мастер-спальня – 14,7 м2; Детская – 13,23 м2; Гостевая – 12,6 м2;
Санузел гостевой – 3,7 м2; Санузел – 7,48 м2; Постирочная-кладовая – 10,71 м2;
Топочная – 7,07 м2; Тамбур – 3,38 м2; Гардероб – 2,22 м2.
Инфраструктура поселка:
Все коммуникации заведены в поселок:
ГАЗ, электричество 15 кВт, водопровод, канализация;
Асфальтированные дороги. КПП и круглосуточная охрана поселка;
Рядом с поселком развитая инфраструктура: школа, больницы, фитнес, магазины 24ч;
Собственная ответственная обслуживающая компания;
На территории поселка будут расположены детские и спортивные площадки;
Рядом реки (р. Москва и р. Пахра), горнолыжный спуск, кинотеатры, конно-спортивный клуб, места для охоты и рыбалки;
Дорога до Москвы занимает 30 минут по Старокаширскому шоссе. Расстояние от МКАД – 22 км. Также возможно добраться по Новорязанскому шоссе;
Рейсовый транспорт от станций метро Домодедовская, Выхино или Котельники, от г. Жуковский и г. Лыткарино.
Ипотека — все госпрограммы, ставка от 5%.
По запросу при платном бронировании и покупке предоставляются эскизный и архитектурный разделы проекта, отчет по геологии земельного участка.
Показ: по договоренности в удобное для вас время!
Дополнительная информация:
При покупке данного объекта покупатель получает в подарок:
-
Сертификат на на покупку мебели и товаров для дома в розничной сети Hoff;
-
Ваучер на бесплатный отдых в солнечной Турции в осенне-зимний период с проживанием в 5-звездочных отелях на 7 ночей/8 дней;
-
Сертификат "Столплит" на сумму на покупку мебели.
Объект продается при содействии специалистов АН «Удачный выбор».
Агентство является членом РГР, ГРМО и партнером всех ведущих банков страны. Мы содействуем в одобрении ипотечных кредитов, помогаем сэкономить на процентной ставке, оценке и страховке, оказываем юридическое сопровождение сделки «под ключ».
Заинтересовало предложение? Звоните! Подробности уточняйте по телефону.
23400000 руб. | 354502 $ | 310667 €