Развернуть карту

Продажа производственного помещения, Верея, Раменский район, ..., 59589900 руб.

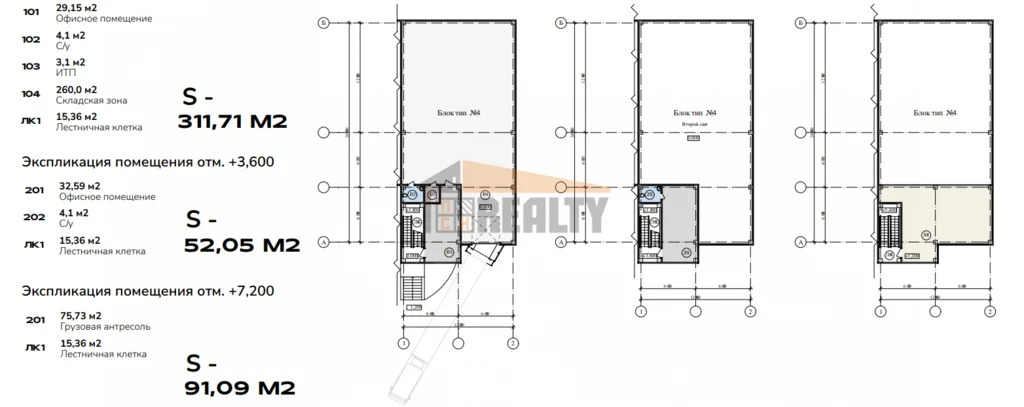
  • Общая площадь, м²662.1
Адрес: Подмосковье, Раменский район, Верея, Островецкое ш.

Арт.
Общая площадь Парка 32000 кв.м. на земельном участке 5 Га.
Юнит общая площадь 662,11 кв.м.
* Высота потолков 12м, полы антипыль
* Центральные коммуникации, 100 м3/сутки водоснабжение
Офисные блоки каждый имеет отдельный вход
* Газ 1500 м3/час
* Эл-во 50 Вт/м2 на каждый блок, в парке 1500 кВт.
* Парковка для легковых и грузовых машин

Условия продажи СЕЙЧАС для ВАС:
*Блоки от 417м2 несколько юнитов можно объединить в единое пространство и увеличить площадь
Есть рассрочка до окончания строительства!
Удобная транспортная доступноть и трудовые ресурсы. Инфракструктура.
МКАД – 15 км ЦКАД – 24 км (А-107, бетонка) Новорязанское шоссе – 1,5 км (М-5) А-102 – 0 км Четырехполосное шоссе до производственного парка ЮЛА – соединяющая СВХ с Симферопольским шоссе
Для пищевой/легкой промышленности, логистики и хранения, для технологичных производств, лабораторий.
Подробности по телефону.



59589900 руб. | 902766 $ | 791137 €

Захарова Зинаида Владимировна

+7 (495) 532-41-14

Изменено: 31 Oct 2025, 22:40:02